当前位置:首页>美女资讯>110平休闲北欧三室 文艺女与理工男的家

110平休闲北欧三室 文艺女与理工男的家

  • 2026-01-28 20:16:23
110平休闲北欧三室 文艺女与理工男的家

点上方蓝字可关注 微信号:装修33天

▲ 建筑面积110平,总造价38万,入户玄关柜与纽扣衣帽钩,一面穿衣镜延伸视觉

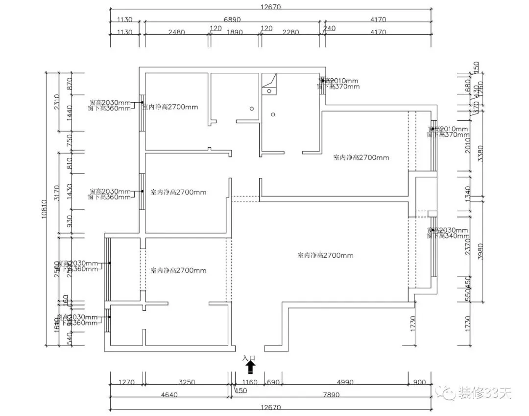
▲ 原始结构图

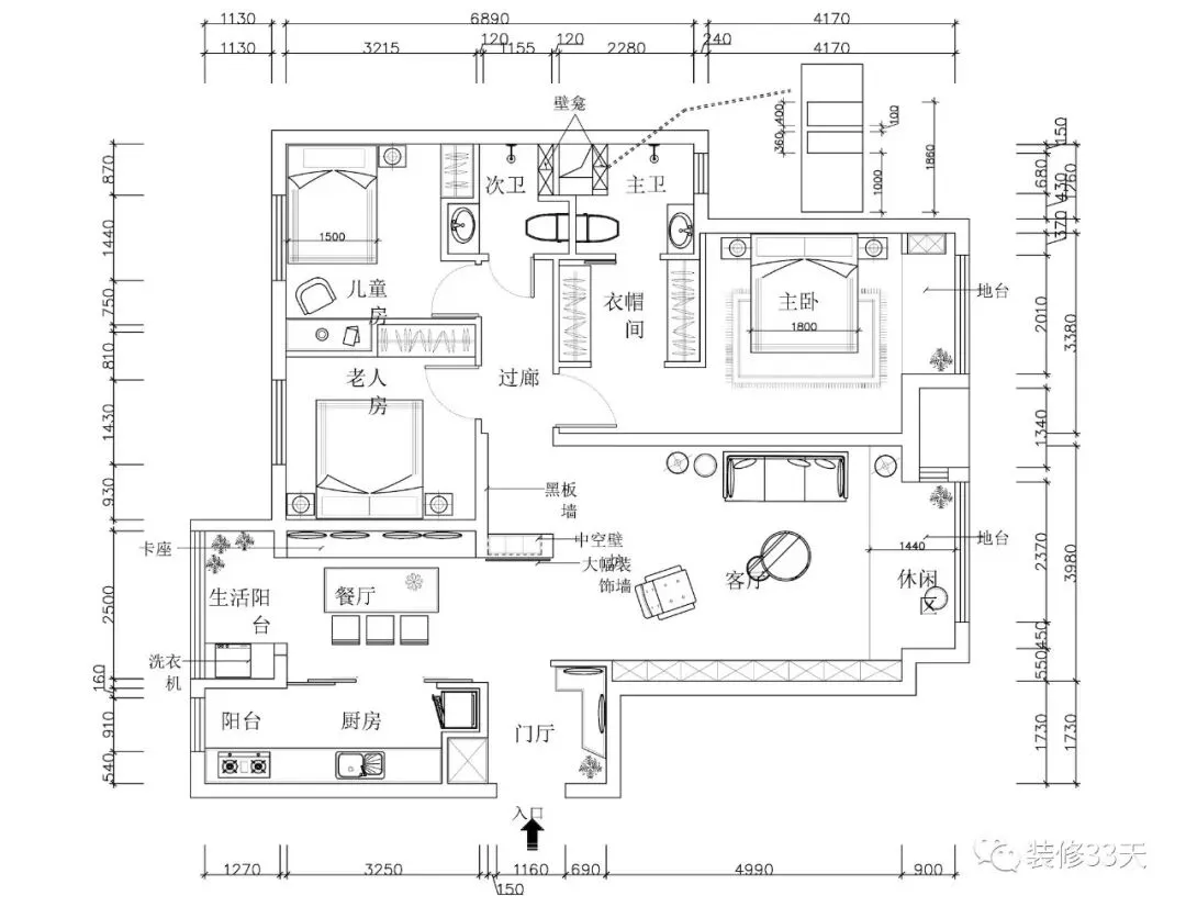
▲ 平面布置图


▲ 进门处地面用花砖铺地,防止地板被踩脏,通过灰色波打线与地板扣条作衔接


▲ 鞋柜背后镶嵌磨砂玻璃,结合文艺气息的中空壁炉,使空间通透精致


▲ 往客厅方向,跳跃黄抽象画提亮空间,公领域木质地板搭配舒适家具


▲ 客厅阳台抬高地面设计成休闲区


▲ 阳台休闲一隅,地毯,靠垫布置的温馨舒适


▲ 餐厅与厨房相邻,采用黑框玻璃移门作隔断,不影响空间通透并有效隔离油烟


▲ 简约餐桌椅搭配玫瑰金吊灯,呈现北欧格调,铺贴定制壁纸作个性背景墙


▲ 厨房水泥灰色地砖搭配花砖背景,定制橱柜嵌入大型厨电,简约干净


▲ 卫生间明黄色谷仓门让人眼前一亮,采用灰系花砖作马桶背景,与整体空间风格保持一致


▲ 淋浴区墙面设计两处壁龛方便放置洗漱用品


▲ 儿童房拼色墙面与拼色窗帘色调呼应,可爱的儿童床与云朵灯,空间充满童趣


▲ 在儿童房内木作书桌与造型吊柜,黄色墙面让空间充满活力


▲ 次卧做老人房使用,留白墙面搭配简约软装,灰帘白纱给人静谧舒适的感觉


▲ 主卧冷色调床背景装金色壁灯,与浅灰色布艺床,和谐搭配


▲ 主卧配有步入式衣帽间,在睡眠区以简单壁面呈现干净利落的空间


▲ 主卫灰色瓷砖搭配花砖背景,增加木色搁板,方便置物

设计 | 六和设计 邓凯(北京)

微信:784791473

后台回复「六和」可以看更多作品

媒体转载请注明装修33天并保留设计师联系方式

欢迎业主、设计师、装修公司免费投稿照片

装修33天商务合作微信:king194316

松爷店铺掌柜微信:yejia1701

六和设计其他作品推荐,点击下图查看100平有格调有质感无固定风格两室

装修33天

实用装修指南

关注

装修33天 🏡 实用装修指南

喜欢我们的文章就随手转发到您朋友圈吧

精品写真推荐

C23.006 教室里的少女 [45P-349MB] C23.006 教室里的少女 [45P-349MB] VOL.026 文静少女 [41P-347MB] VOL.026 文静少女 [41P-347MB] XiuRen秀人网 2018.07.10 No.1072 艺文Eva[40+1P184M] XiuRen秀人网 2018.07.10 No.1072 艺文Eva[40+1P184M] XiuRen秀人网 2022.02.18 No.4603 林文文yooki 淑女美腿[62+1P 561MB] XiuRen秀人网 2022.02.18 No.4603 林文文yooki 淑女美腿[62+1P 561MB] C15.005 黑修女与白丝JK [38P-374MB] C15.005 黑修女与白丝JK [38P-374MB] XiuRen秀人网 2013.09.22 No.014 邻家少女羽住 XiuRen秀人网 2013.09.22 No.014 邻家少女羽住 C36.003 狂三兔女郎 [40P-561MB] C36.003 狂三兔女郎 [40P-561MB] C25.004 少女的密语 [40P-617MB] C25.004 少女的密语 [40P-617MB] C48.007 少女的袜子 [40P-63MB] C48.007 少女的袜子 [40P-63MB] C28.002 超棒的居家服 [39P-79MB] C28.002 超棒的居家服 [39P-79MB] C08.001 被束缚的少女 [44P-584MB] C08.001 被束缚的少女 [44P-584MB] C41.008 猫猫的女仆装 [41P-645MB] C41.008 猫猫的女仆装 [41P-645MB] C14.007 教室里的黑丝 [39P-334MB] C14.007 教室里的黑丝 [39P-334MB] C50.003 教室里的穹妹 [40P-557MB] C50.003 教室里的穹妹 [40P-557MB] C10.001 光与暗的使者 [42P-761MB] C10.001 光与暗的使者 [42P-761MB] C18.002 教室走廊外的JK [41P-425MB] C18.002 教室走廊外的JK [41P-425MB] C21.005 教室里的JK白丝 [40P-347MB] C21.005 教室里的JK白丝 [40P-347MB] C40.006 教室里的南小鸟 [40P-446MB] C40.006 教室里的南小鸟 [40P-446MB] C20.003 超可爱的猫耳女仆 [48P-424MB] C20.003 超可爱的猫耳女仆 [48P-424MB] 神楽坂真冬 第三季 序号33:兔女郎与钢管《バニーバブル》 [150P2V-825MB]标签:兔女郎, 内衣, 双马尾, 白丝, 神楽坂真冬, 美腿, 美足, 高跟鞋, 黑丝 神楽坂真冬 第三季 序号33:兔女郎与钢管《バニーバブル》 [150P2V-825MB]标签:兔女郎, 内衣, 双马尾, 白丝, 神楽坂真冬, 美腿, 美足, 高跟鞋, 黑丝 C29.005 双马尾的白色居家服 [39P-512MB] C29.005 双马尾的白色居家服 [39P-512MB] C22.001 碧蓝-欧根花嫁 [35P-404MB] C22.001 碧蓝-欧根花嫁 [35P-404MB] 少女秩序 VOL.03 少女的心思 白丝短发 [40P-232.2M]可爱, 少女秩序, 白丝, 美腿, 美足 少女秩序 VOL.03 少女的心思 白丝短发 [40P-232.2M]可爱, 少女秩序, 白丝, 美腿, 美足 C01.002 穿黑丝牛仔裙的少女 [46P-204MB] C01.002 穿黑丝牛仔裙的少女 [46P-204MB] 少女秩序 VOL.12 少女的丝足特写 白丝双马尾[45P-294.2M]双马尾, 少女秩序, 白丝, 美腿, 美足 少女秩序 VOL.12 少女的丝足特写 白丝双马尾[45P-294.2M]双马尾, 少女秩序, 白丝, 美腿, 美足 少女秩序 VOL.15 超薄白丝的质感[47P-338.1M]少女秩序, 白丝, 美腿, 美足 少女秩序 VOL.15 超薄白丝的质感[47P-338.1M]少女秩序, 白丝, 美腿, 美足 XiuRen秀人网 2020.02.28 No.2015 林文文yooki[65+1P174M] XiuRen秀人网 2020.02.28 No.2015 林文文yooki[65+1P174M] XIUREN秀人网 2020.01.09 NO.1914 林文文yooki[62+1P/100M] XIUREN秀人网 2020.01.09 NO.1914 林文文yooki[62+1P/100M] XIUREN秀人网 2020.02.14 NO.1975 林文文yooki[66+1P/163M] XIUREN秀人网 2020.02.14 NO.1975 林文文yooki[66+1P/163M] 少女秩序 VOL.06 新买的黑丝 双马尾[55P-172M]双马尾, 少女秩序, 美腿, 美足, 黑丝 少女秩序 VOL.06 新买的黑丝 双马尾[55P-172M]双马尾, 少女秩序, 美腿, 美足, 黑丝 少女秩序 VOL.11 恋上你的床 可爱白丝[49P-280M]可爱, 少女秩序, 白丝, 美腿, 美足 少女秩序 VOL.11 恋上你的床 可爱白丝[49P-280M]可爱, 少女秩序, 白丝, 美腿, 美足 XiuRen秀人网 2018.05.10 No.1011 北海大公主[45+1P92M] XiuRen秀人网 2018.05.10 No.1011 北海大公主[45+1P92M] 神楽坂真冬 第三季 序号29:女仆主题《愛のラビリンス2 》 [150P2V-601MB]兔女郎, 内衣, 双马尾, 女仆, 神楽坂真冬, 美腿, 美足, 高跟鞋, 黑丝 神楽坂真冬 第三季 序号29:女仆主题《愛のラビリンス2 》 [150P2V-601MB]兔女郎, 内衣, 双马尾, 女仆, 神楽坂真冬, 美腿, 美足, 高跟鞋, 黑丝 少女秩序 VOL.04 艳丽的小红裙 JK 白丝[52P-417.5M]JK, JK制服, 少女秩序, 白丝, 美腿, 美足 少女秩序 VOL.04 艳丽的小红裙 JK 白丝[52P-417.5M]JK, JK制服, 少女秩序, 白丝, 美腿, 美足 XiuRen秀人网 2014.03.11 No.110 白雪 [51P-120MB] XiuRen秀人网 2014.03.11 No.110 白雪 [51P-120MB] 少女秩序 EX.05 黑丝JK的绝对诱惑[45P-270.9M]JK, JK制服, 制服, 少女秩序, 美腿, 美足, 黑丝 少女秩序 EX.05 黑丝JK的绝对诱惑[45P-270.9M]JK, JK制服, 制服, 少女秩序, 美腿, 美足, 黑丝 兔玩映画 兔女郎 Vol.025 风女 [42P-849MB] 兔玩映画 兔女郎 Vol.025 风女 [42P-849MB] 兔玩映画 兔女郎 Vol.050 女仆 [41P-593MB] 兔玩映画 兔女郎 Vol.050 女仆 [41P-593MB] 少女秩序 VOL.16 无法拒绝的白丝 可爱双马尾[49P-354M]双马尾, 少女秩序, 白丝, 美腿, 美足 少女秩序 VOL.16 无法拒绝的白丝 可爱双马尾[49P-354M]双马尾, 少女秩序, 白丝, 美腿, 美足 兔玩映画 兔女郎 Vol.001 兔女郎 [51P-75MB] 兔玩映画 兔女郎 Vol.001 兔女郎 [51P-75MB] 少女秩序 EX.06 古川kagura 蓝色猫女仆白丝美腿[42P-295.7M]古川kagura, 女仆, 少女秩序, 白丝, 美腿, 美足 少女秩序 EX.06 古川kagura 蓝色猫女仆白丝美腿[42P-295.7M]古川kagura, 女仆, 少女秩序, 白丝, 美腿, 美足 C02.006 英梨梨兔女郎和睡衣、女仆装 [40P-803MB] C02.006 英梨梨兔女郎和睡衣、女仆装 [40P-803MB] 少女秩序 VOL.05 课堂上的幻想 白丝校服[30P-270.9M]制服, 学生装, 少女秩序, 校服, 白丝, 美腿, 美足 少女秩序 VOL.05 课堂上的幻想 白丝校服[30P-270.9M]制服, 学生装, 少女秩序, 校服, 白丝, 美腿, 美足 少女秩序 VOL.10 享受周末的假日 白丝双马尾[49P-356.9M]双马尾, 可爱, 少女秩序, 白丝, 美腿, 美足 少女秩序 VOL.10 享受周末的假日 白丝双马尾[49P-356.9M]双马尾, 可爱, 少女秩序, 白丝, 美腿, 美足 少女秩序 VOL.14 美味的生活 白丝双马尾睡裙[47P-360.7M]双马尾, 少女秩序, 白丝, 睡衣, 美腿, 美足 少女秩序 VOL.14 美味的生活 白丝双马尾睡裙[47P-360.7M]双马尾, 少女秩序, 白丝, 睡衣, 美腿, 美足 XiuRen秀人网 2014.05.17 No.136 模特合集[110+1P216M] XiuRen秀人网 2014.05.17 No.136 模特合集[110+1P216M] 少女秩序 晞可 绝对领域 黑丝双马尾女仆 [106P-2.09GB]双马尾, 女仆, 少女秩序, 晞可, 美腿, 美足, 黑丝 少女秩序 晞可 绝对领域 黑丝双马尾女仆 [106P-2.09GB]双马尾, 女仆, 少女秩序, 晞可, 美腿, 美足, 黑丝 少女秩序 VOL.07 格子短裙的诱惑 白丝双马尾[51P-120.9M] JK制服, 双马尾, 少女秩序, 白丝, 美腿, 美足 少女秩序 VOL.07 格子短裙的诱惑 白丝双马尾[51P-120.9M] JK制服, 双马尾, 少女秩序, 白丝, 美腿, 美足 少女秩序 GR02L 乐栀 白丝双马尾猫耳女仆 [42P-248MB]乐栀, 双马尾, 女仆, 少女秩序, 猫耳, 白丝, 美腿, 美足 少女秩序 GR02L 乐栀 白丝双马尾猫耳女仆 [42P-248MB]乐栀, 双马尾, 女仆, 少女秩序, 猫耳, 白丝, 美腿, 美足 少女秩序 GR06L 小葵 双马尾白丝猫耳女仆 [65P-877MB]双马尾, 女仆, 小葵, 少女秩序, 猫耳, 白丝, 美腿, 美足 少女秩序 GR06L 小葵 双马尾白丝猫耳女仆 [65P-877MB]双马尾, 女仆, 小葵, 少女秩序, 猫耳, 白丝, 美腿, 美足 楽坂真冬 第三季 序号17:《ウサギタイム 》 [150P2V-646MB]兔女郎, 内衣, 双马尾, 女仆, 白丝, 神楽坂真冬, 美腿, 美足, 高跟鞋, 黑丝 楽坂真冬 第三季 序号17:《ウサギタイム 》 [150P2V-646MB]兔女郎, 内衣, 双马尾, 女仆, 白丝, 神楽坂真冬, 美腿, 美足, 高跟鞋, 黑丝 JKFUN-038《湿气很重的白色房间》80D白色过膝袜 卉子 [105P1V-3.63G]JKFUN, 女仆, 女仆装, 森萝财团, 白丝, 美腿, 美足 JKFUN-038《湿气很重的白色房间》80D白色过膝袜 卉子 [105P1V-3.63G]JKFUN, 女仆, 女仆装, 森萝财团, 白丝, 美腿, 美足 XiuRen秀人网 2014.07.08 No.173 狐狸小姐Adela[110+1P271M] XiuRen秀人网 2014.07.08 No.173 狐狸小姐Adela[110+1P271M] 少女秩序 EX.01 双马尾白丝少女[56P-377.4M]双马尾, 少女秩序, 白丝, 美腿, 美足 少女秩序 EX.01 双马尾白丝少女[56P-377.4M]双马尾, 少女秩序, 白丝, 美腿, 美足 C07.001 fate女仆 [42P-427MB] C07.001 fate女仆 [42P-427MB] C46.008 Lolita少女 [47P-555MB] C46.008 Lolita少女 [47P-555MB] SD.006 女枪 [40P-989MB] SD.006 女枪 [40P-989MB] 少女秩序 千澄 人気アイドル千澄最新作・ルーズソックス少女 [43P-109MB]内衣, 千澄, 双马尾, 少女秩序 少女秩序 千澄 人気アイドル千澄最新作・ルーズソックス少女 [43P-109MB]内衣, 千澄, 双马尾, 少女秩序 少女秩序 EX.07 猫猫 双马尾白丝衬衣+黑丝女仆 [29P-147MB]双马尾, 可爱, 女仆, 少女秩序, 白丝, 美腿, 美足, 衬衣, 黑丝 少女秩序 EX.07 猫猫 双马尾白丝衬衣+黑丝女仆 [29P-147MB]双马尾, 可爱, 女仆, 少女秩序, 白丝, 美腿, 美足, 衬衣, 黑丝 森萝财团 内部-006 沙发上的双马尾白丝睡衣美少女 [104P1V-3.39GB] 森萝财团 内部-006 沙发上的双马尾白丝睡衣美少女 [104P1V-3.39GB] 神楽坂真冬 第三季 序号10:《おかえり》猫脚女仆 [150P2V-543MB]内衣, 双马尾, 女仆, 白丝, 睡衣, 神楽坂真冬, 美腿, 美足, 黑丝 神楽坂真冬 第三季 序号10:《おかえり》猫脚女仆 [150P2V-543MB]内衣, 双马尾, 女仆, 白丝, 睡衣, 神楽坂真冬, 美腿, 美足, 黑丝 C00.005 邻家宅小妹 [40P-282MB] C00.005 邻家宅小妹 [40P-282MB] C25.002 粉色居家服 [40P-65MB] C25.002 粉色居家服 [40P-65MB] VOL.009 邻家妹妹 [41P-388MB] VOL.009 邻家妹妹 [41P-388MB] C06.006 猫耳女仆 [41P-539MB] C06.006 猫耳女仆 [41P-539MB] C08.003 黑色少女 [41P-95MB] C08.003 黑色少女 [41P-95MB] C09.008 制服女孩 [41P-362MB] C09.008 制服女孩 [41P-362MB] C13.003 猫和少女 [42P-102MB] C13.003 猫和少女 [42P-102MB] C28.004 果腿少女 [40P-90MB] C28.004 果腿少女 [40P-90MB] C32.002 地狱少女 [40P-577MB] C32.002 地狱少女 [40P-577MB] C34.007 蓝色女仆 [40P-709MB] C34.007 蓝色女仆 [40P-709MB] C36.007 穹妹女仆 [42P-377MB] C36.007 穹妹女仆 [42P-377MB] C50.004 玛修女仆 [49P-583MB] C50.004 玛修女仆 [49P-583MB] D52.005 女仆围裙 [42P-200MB] D52.005 女仆围裙 [42P-200MB] C35.003 红与黑 [40P-385MB] C35.003 红与黑 [40P-385MB] XiuRen秀人网 2020.05.15 No.2238 艺轩[84+1P174M] XiuRen秀人网 2020.05.15 No.2238 艺轩[84+1P174M] 神楽坂真冬 第三季 序号19:《光の囁き 》光の修女 [150P2V-884MB]修女, 内衣, 双马尾, 白丝, 神楽坂真冬, 美腿, 美足, 高跟鞋, 黑丝 神楽坂真冬 第三季 序号19:《光の囁き 》光の修女 [150P2V-884MB]修女, 内衣, 双马尾, 白丝, 神楽坂真冬, 美腿, 美足, 高跟鞋, 黑丝 VOL.004 教室JK [40P-546MB] VOL.004 教室JK [40P-546MB] C09.002 格子裙少女 [41P-338MB] C09.002 格子裙少女 [41P-338MB] C12.007 小黄帽女孩 [49P-376MB] C12.007 小黄帽女孩 [49P-376MB]

最新文章

随机文章